г. Каменск-Шахтинский, ул. Халтурина,  Показать на карте
Время работы
background-3
900+ клиентов и отзывов

МКД Центральный — новый адрес вашего комфорта

Проектируем, строим и создаем гармоничную среду для жизни.

background-6
background-7
background-8
Проверенный застройщик
Проверенный застройщик Девелопер полного цикла с 2016 года — от проектирования до благоустройства.
Гарантия сроков
Гарантия сроков Сдаем объекты вовремя и в полном соответствии с договором.
Доступные условия
Доступные условия Ипотека с господдержкой, рассрочка, материнский капитал и первый взнос 0%.

«СЗ Югстройинвест» — застройщик, которому доверяют

ООО «СЗ Югстройинвест» — девелопер полного цикла, который реализует проекты от проектирования до возведения и благоустройства. Компания работает в Ростовской области и создаёт жилые комплексы, где стиль сочетается с комфортом, а качество - с доступностью. За годы работы сдано более 26 000 м² жилья, ещё 8 900 м² находятся на этапе постройки.

МКД Центральный — третий объект компании. Это 10-этажный дом с 144 квартирами, коммерческими помещениями и благоустроенной территорией. Особое внимание уделяется фасаду здания: вентилируемый фасад с применением керамогранита, выразительные световые линии подчёркивают строгие вертикали и современный стиль, делают внешний облик дома узнаваемым в любое время суток, добавляя ему индивидуальности и привлекательности. Световые акценты органично дополняют архитектурную композицию и создают атмосферу уюта для жителей и гостей.

Проект воплощает философию застройщика: строить так, как хотел бы жить сам. Здесь продумано всё до мелочей для вашей комфортной жизни:

  • Индивидуальное отопление от блочно-модульной котельной;
  • Современные фасады;
  • Уникальные планировки;
  • Благоустроенная территория с детскими площадками и озеленением;
  • Удобная транспортная развязка;
  • Качественные строительные материалы;
  • Бесшумные и безопасные лифты;
  • Квартиры с ремонтом под ключ;
  • Внимание к деталям делают этот дом новой визитной карточкой Каменск-Шахтинского.
«СЗ Югстройинвест» — застройщик, которому доверяют

Условия покупки

Мы создали простые и выгодные условия, чтобы покупка квартиры стала комфортной и прозрачной.

Подробнее
01 Первоначальный взнос 0 %
Первоначальный взнос 0 % Можно оформить ипотеку без стартового взноса — просто выбирайте квартиру, подавайте заявку и получайте одобрение без необходимости вносить первоначальные средства.
02 Семейная ипотека от 3,5 %
Семейная ипотека от 3,5 % Для семей с детьми действует льготная ставка по ипотеке — сниженный процент, удобные условия и государственная поддержка, чтобы покупка нового жилья была максимально доступной.
03 Ипотека от Сбербанка
Ипотека от Сбербанка Получите одобрение займа по выгодным условиям: минимальный пакет документов, быстрая проверка заявки и гибкие параметры, адаптированные под ваши финансовые возможности.
04 Рассрочка
Рассрочка Не откладывайте мечту на потом — покупайте квартиру в рассрочку! Застройщик предлагает беспроцентную рассрочку на квартиру до конца строительства дома. Начните новую главу своей жизни уже сейчас!

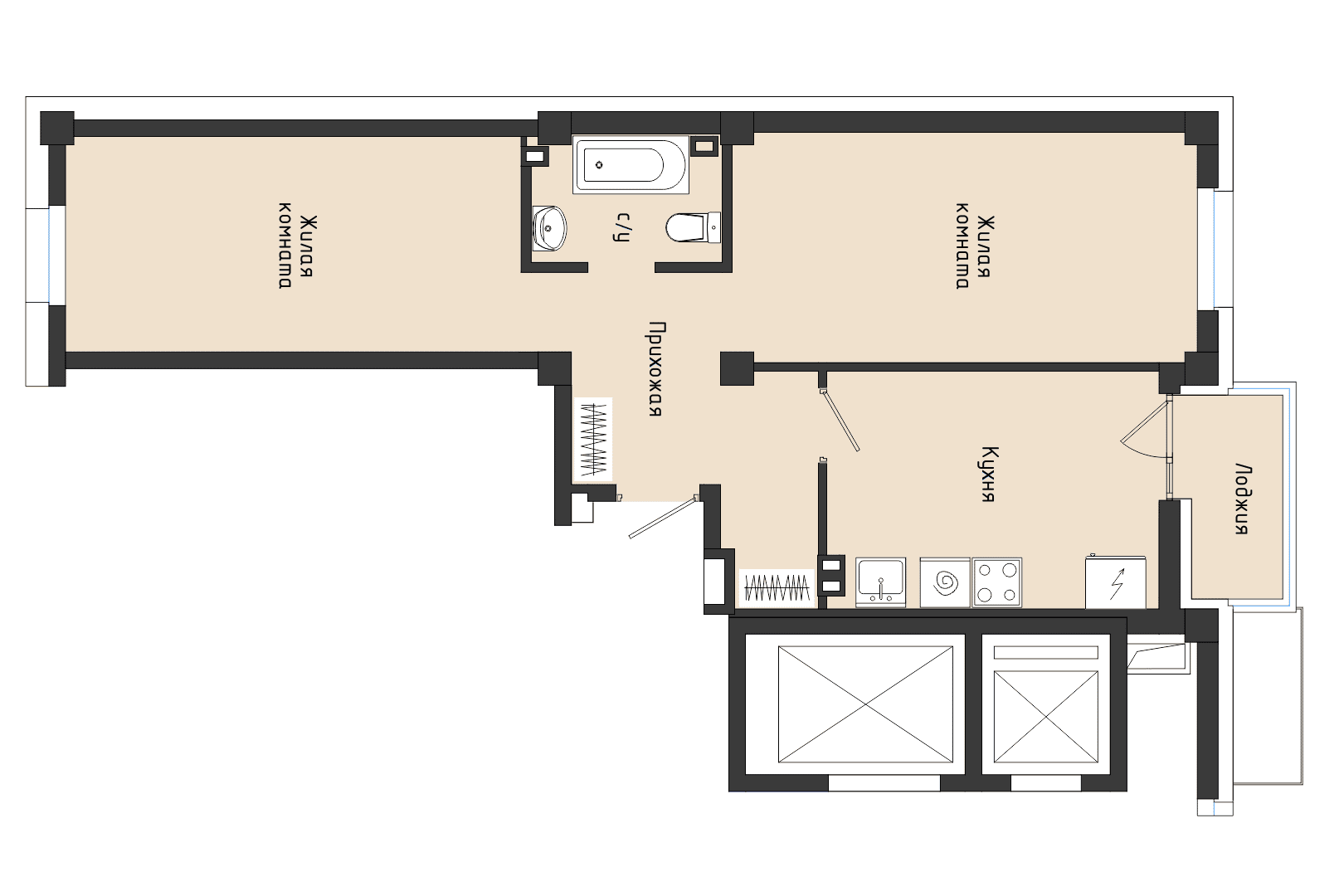
Выберите свою планировку

МКД Центральный предлагает жилье в самом центре Каменск-Шахтинского: 10 этажей, 1 и 2-комнатные квартиры, 15 разных типов планировок по доступной цене. Изучите варианты и выберите жилье, которое подойдет именно вам.

от 5 499 000 Актуальную стоимость уточняйте в отделе продаж
  • Этаж 4, 6, 7, 9
  • Тип балкона Лоджия
  • Площадь 53,62 м²
  • Тип квартиры 2-комнатная
от 2 743 000 Актуальную стоимость уточняйте в отделе продаж
  • Этаж 6, 8, 10
  • Тип балкона Лоджия
  • Площадь от 33,42 м² до 33,53 м²
  • Тип квартиры 1-комнатная
от 2 743 000 Актуальную стоимость уточняйте в отделе продаж
  • Этаж 5, 8, 9, 10
  • Тип балкона Лоджия
  • Площадь от 34,67 м² до 34,92 м²
  • Тип квартиры 1-комнатная
от 2 743 000 Актуальную стоимость уточняйте в отделе продаж
  • Этаж 2, 6
  • Тип балкона Лоджия
  • Площадь 34,39 м²
  • Тип квартиры 1-комнатная
от 2 743 000 Актуальную стоимость уточняйте в отделе продаж
  • Этаж 8, 9, 10
  • Тип балкона Лоджия
  • Площадь от 31,07 м² до 32,99 м²
  • Тип квартиры 1-комнатная
от 2 743 000 Актуальную стоимость уточняйте в отделе продаж
  • Этаж 4, 5, 6, 7, 8, 9, 10
  • Тип балкона Лоджия
  • Площадь от 32,77 м² до 34,84 м²
  • Тип квартиры 1-комнатная
от 2 743 000 Актуальную стоимость уточняйте в отделе продаж
  • Этаж 4, 5, 6, 7, 8, 9, 10
  • Тип балкона Лоджия
  • Площадь от 32,20 м² до 35,20 м²
  • Тип квартиры 1-комнатная
от 2 743 000 Актуальную стоимость уточняйте в отделе продаж
  • Этаж 9
  • Тип балкона Лоджия
  • Площадь 34,08 м²
  • Тип квартиры 1-комнатная
от 2 743 000 Актуальную стоимость уточняйте в отделе продаж
  • Этаж 2
  • Тип балкона Лоджия
  • Площадь 37,38 м²
  • Тип квартиры 1-комнатная
от 3 303 000 Актуальную стоимость уточняйте в отделе продаж
  • Этаж 2
  • Тип балкона Лоджия
  • Площадь 31,49 м²
  • Тип квартиры 1-комнатная
background-24
cta-24

Получите детальную информацию о планировках и ценах

Оставьте заявку — мы оперативно свяжемся с вами и расскажем об условиях покупки.

Полный цикл услуг

Компания сопровождает клиента на всех этапах — от выбора квартиры до оформления сделки. Мы поможем оформить документы, получить одобрение ипотеки и обеспечить юридическую чистоту покупки.

Юридическое сопровождение
Юридическое сопровождение Контроль всех документов и безопасная сделка.
Связаться
Одобрение ипотеки в ведущих банка
Одобрение ипотеки в ведущих банка Помощь в получении кредита в ведущих банках.
Связаться

Банки партнёры

logo-1
logo-2
logo-3
logo-4
background-5

Узнайте, какие планировки доступны

Заполните форму и получите подборку подходящих вариантов за несколько минут.

Узнайте, какие планировки доступны
background-7

Отзывы клиентов

Панкрахин Константин
Покупали квартиру через Югстройинвест, брали в ипотеку с господдержкой. Ребята помогли со всеми документами, сами связались с банком, мне только нужно было прийти и подписать. Всё прошло без нервов, спасибо большое менеджеру Ирине за терпение!
Обратились по совету друзей, которые уже покупали через них жилье. Помогли оформить ипотеку под хорошую ставку, плюс объяснили, как использовать маткапитал. Остались довольны, рекомендую.
Купил квартиру через Югстройинвест, всё прошло гладко. Понравилось, что можно было забронировать квартиру до одобрения ипотеки - успел взять нужный этаж. Цены адекватные, условия прозрачные.
Верещако Виталий
Долго выбирали квартиру, в итоге остановились на МКД Центральный. Понравилось, что менеджеры всё подробно объясняют, не впаривают. Помогли подобрать программу с минимальным первоначальным взносом. Честно и без скрытых условий.

Часто задаваемые вопросы

01

Когда планируется сдача дома МКД «Центральный»?

Срок завершения строительства — второй квартал 2026 года. На всех этапах соблюдаются утвержденные графики работ.

02

Можно ли купить квартиру с ипотекой и госпрограммой?

Да. Действует семейная ипотека от 3,5%, ипотека с господдержкой и программа без первоначального взноса. Мы помогаем одобрить её в ведущих банках.

03

Предусмотрена ли отделка в квартирах?

Да. Квартиры сдаются с чистовой подготовкой — ровная стяжка, окна ПВХ, входная дверь, радиаторы, счетчики. По желанию заказчика возможна отделка «под ключ».

04

Что включает благоустройство территории?

В проекте предусмотрены детские и спортивные площадки, парковочные зоны, озеленение и коммерческие помещения для удобства жителей.

05

Можно ли посмотреть планировки и выбрать квартиру?

Да, доступно до 15 планировок 1- и 2-комнатных квартир. Оставьте заявку — менеджер подберет варианты по вашим критериям, покажет виды из окон и рассчитает платеж.

Контактная информация

Задать вопрос После заполнения мы перезвоним через 10 минут.
Загрузка...